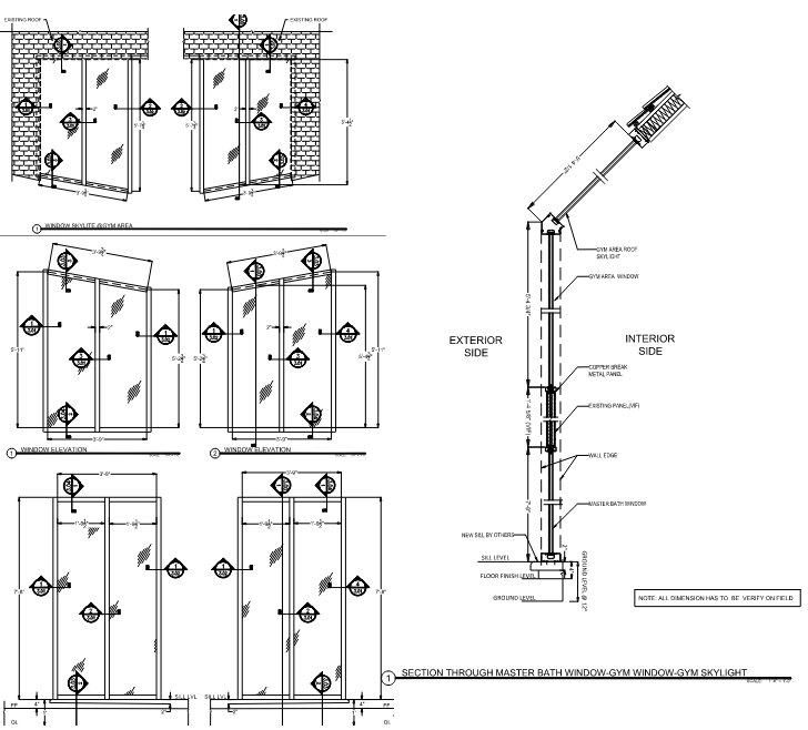
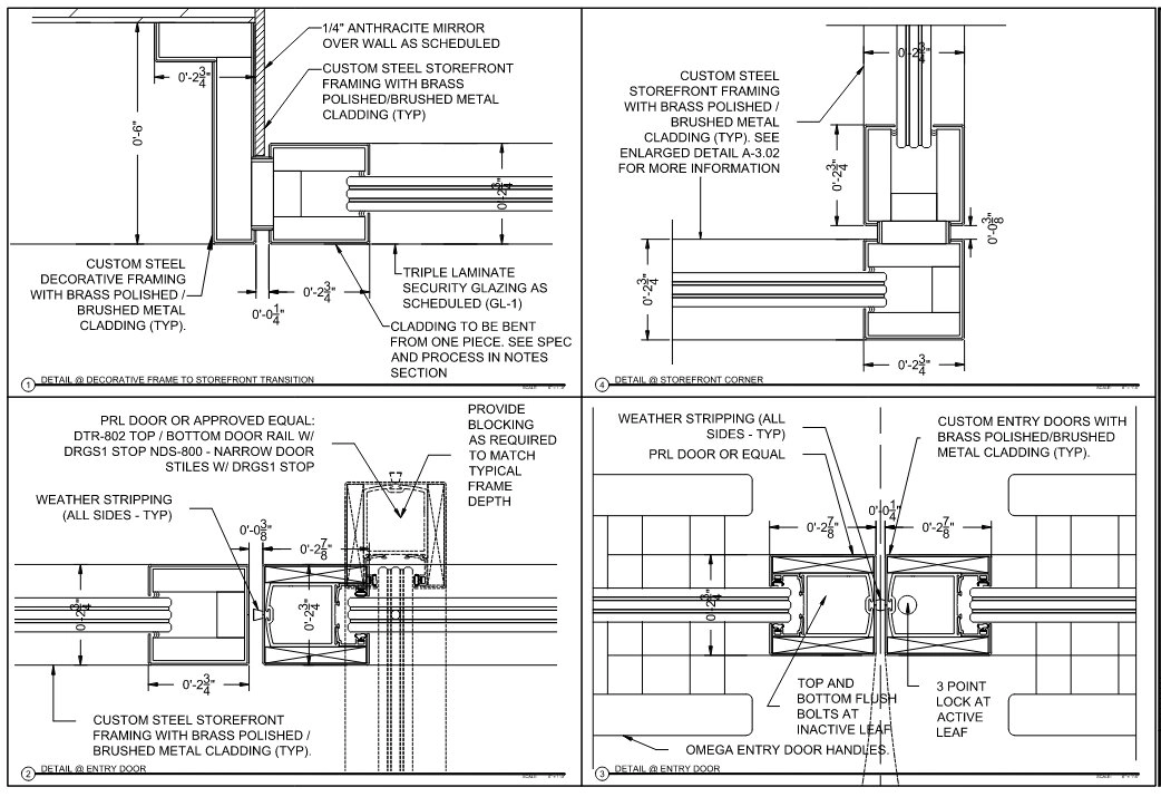
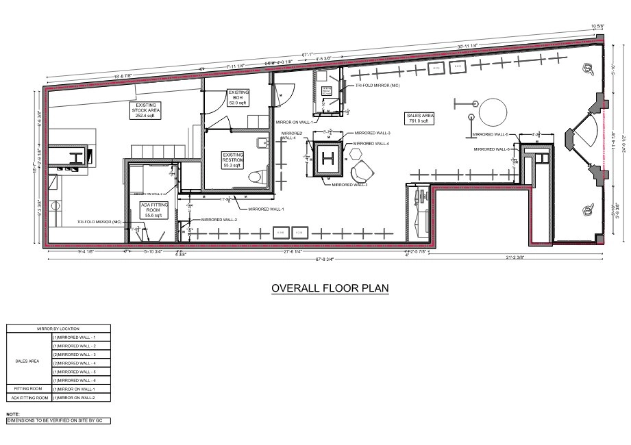
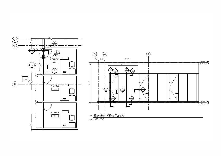
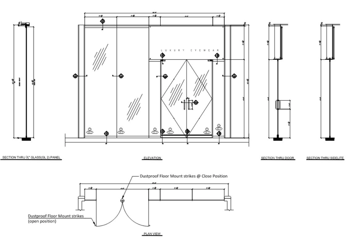
Glazing shop drawings are detailed, scaled representations of the proposed glazing systems for a construction project. These drawings provide a visual and technical guide for the installation team, helping them understand the design intent and ensuring accurate implementation. By including precise dimensions, material specifications, and installation details, glazing shop drawings facilitate seamless coordination among various stakeholders, minimize errors, and enhance overall project efficiency
At BIMBOSS Consultants, We take pride in offering high-quality glazing shop drawings that cater to the needs of architects, contractors, and builders since 2014. Our team of experienced draftsmen and engineers combines technical expertise with attention to detail to create accurate and comprehensive shop drawings for a wide range of glazing systems for a commercial, residential, or any other construction building. Our shop drawings will serve as an invaluable tool throughout the glazing installation process.






