< Outsource BIM Electrical Design Services in USA, UK, India
electrical1
electrical2
electrical3
electrical4
electrical5
electrical6
electrical7
electrical8
Our Methods:

Electrical Design

  • Clash Detection
  • Maintenance of connection between electrical information, Circuit information, size, and manufacturer
  • 3D Modeling
  • Electrical design
  • LEED Design
  • Lightning Design
  • Low voltage system design
  • Library Creation
  • Energy Simulation
  • Extraction of project information
  • Virtual Intelligent 3D Model

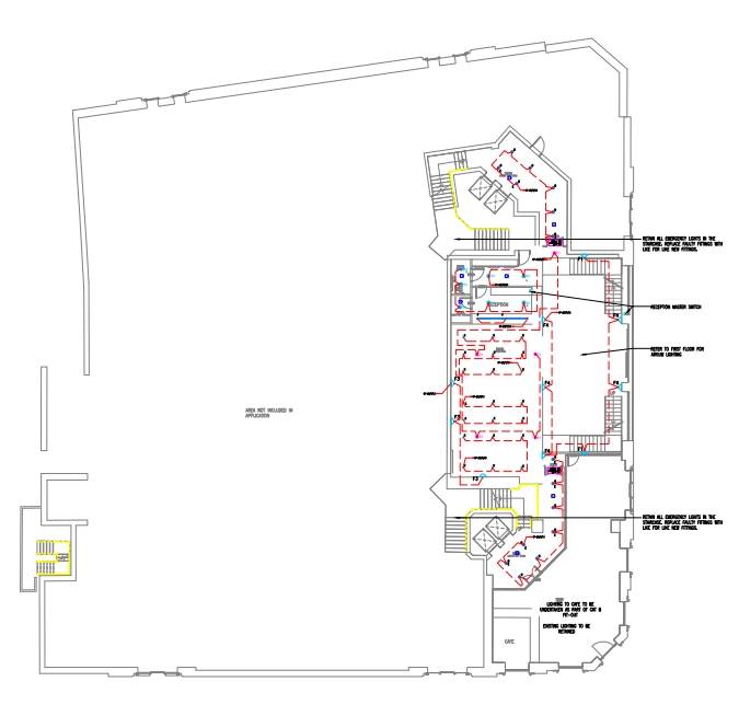
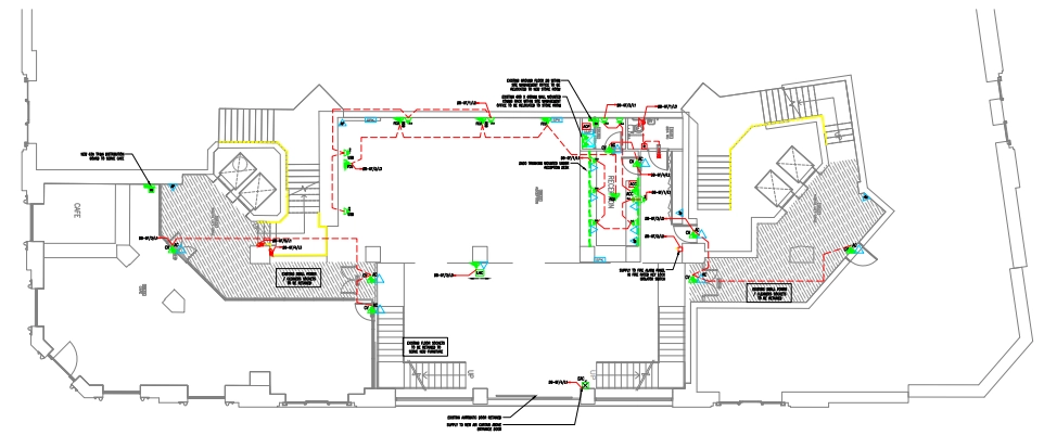
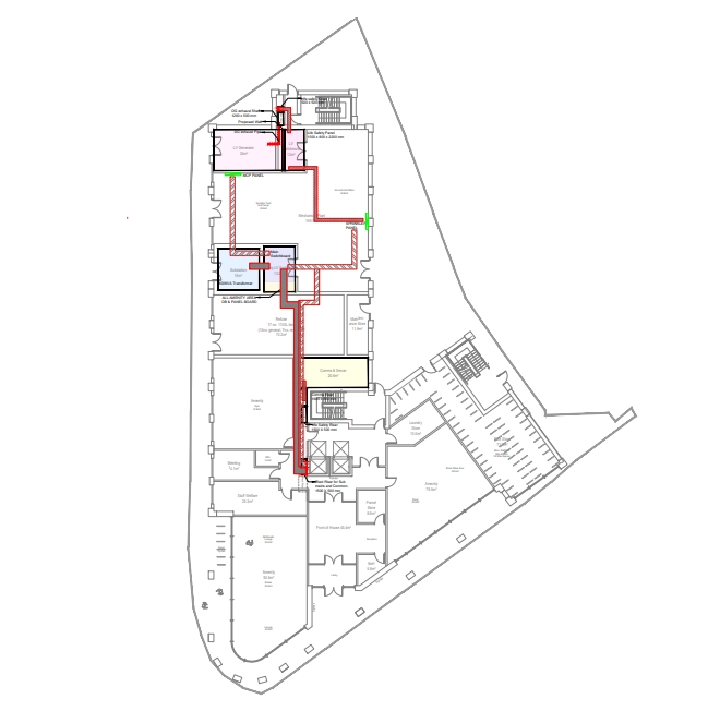
BIMBoss provides comprehensive Electrical BIM Services in a number of formats. We consistently make every attempt to provide accurate, timely, high-quality services at affordable prices. We develop 3D models that display detailed images of electrical interconnections, connections, and construction components. These models serve as a useful tool for 3D cooperation between many disciplines.

In-house BIM design department with the ability to create Electrical construction documentation of any complexity or scale. Our organization is composed of a highly skilled design staff that handles all lighting fixtures, conduit, cable trays, and distribution equipment.

We provide thorough preparation and comprehension of the operation, equipment, timing, and strategy. By utilising BIM technology, BIM BOSS is at the top of the industry, offering a detailed plan and well-informed schematics. With the integration of BIM, we are devoted to generating excellent results because every stage of building is carefully planned and created from beginning to end.

Why Us:

  • Good Efficiency
  • Time & Cost Savior
  • High-Quality Construction Documents
  • Strong commitment to supporting the client
  • Clients Opinions are always welcomed
  • Smooth facilitation of construction process
  • Access to up to date software

For more information and queries, our doors are always open. Please drop a call/mail or stop by to understand our service in order to take utmost benefit and innovation.